EL CHORRILLO, TRUJILLO
- casa de campo en extremadura
Rehabilitación y ampliación de una antigua casa de té
Cliente: PRIVADO
Año: EN OBRA
Area: 4OOm2
presupuesto: 28O.OOO€












︎DESCRIPCIÓN / BRIEF
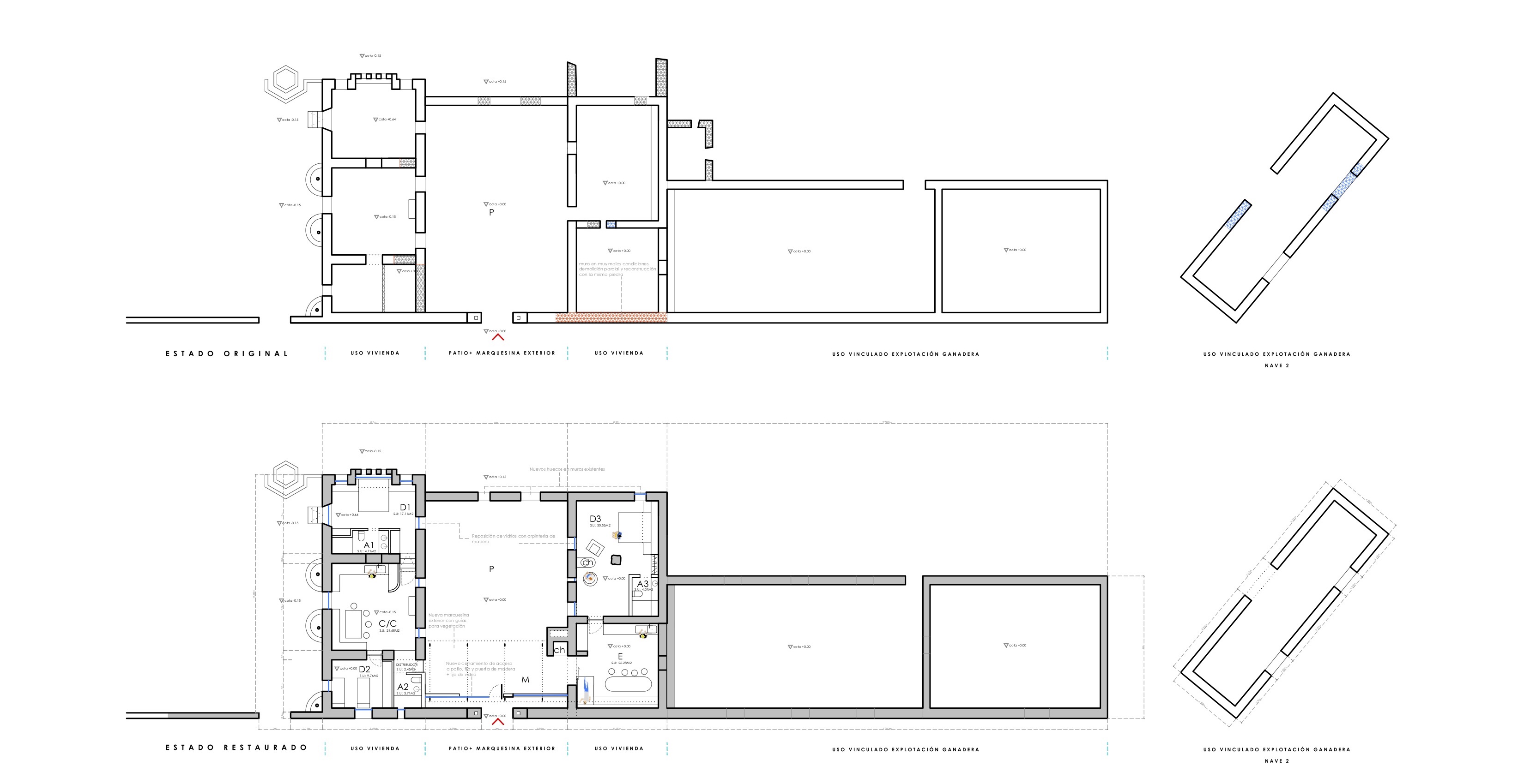
El punto de partida es una antigua casa de té de 1903 en una finca a la orilla Norte de Trujillo, bajo su muralla. Encontramos un conjunto de edifiaciones entre los que se encuentra una construcción neomudejar de arcos de herradura, 3 construcciones de mampostería en ruinas y una gran nave a restuarar .
Todo ello en torno a un patio con 3 Importantes palmeras.
El proyecto rehabilita las construcciones existentes que conforman el Ala Sur, Habita el inteiror de la nave Norte y crea una nueva pastilla que enlaza ambos, se cierra al exterior y se abre al patio.
La nueva pastilla será de hormigón ciclopeo con granito piedra abundante en el solar, con pequeños huecos estrategicos hacia el acceso pero grandes huecos hacia el patio y parte de las preexistencias que se mantienen como ruina consolidada y habitada por un estanque con ranas.
La parcela está marcada por la abundancia de agua en diversos manantiales y la circulación de ésta por toda ella. Se rescatana antiguas norias de agua y pozos presentes en la parcela, que aprovechando aterrazamientos existenes generan un flujo de agua por las dos hectareas que rodean la edifiación formando un Oasis, una zona de vegetación nutrida en el duro ambiente Extremeño.
Se define la actuación como una intervención mínima que consolodia y pone en valor la preexistencia y le da vida a través de la
vegetación y el agua
︎
palabras clave: construir en madrid, arquitectura en madrid, vivienda barata en Madrid, arquitectura, minicasa, casa prefabricada, arquitectura en madera, arquitectura sostenible, cuanto cuesta construir en madrid, proyecto de vivienda en madrid, diseño de interiores, diseño de interiores en madrid, decoración, reforma de vivienda, reforma en madrid, mejor arquitectura de madrid, diseño arquitectura, precio de construcción en españa, vivienda minima, vivienda singular, vivienda sostenible, vivienda ecologica, nueva construccion madrid, despacho arquitectura madrid, estudio de arquitectura, vivienda adosada, vivienda adosada en hortaleza, vivienda nueva en hortaleza, cuanto cuesta construir una casa, cuanto cuesta construir una casa en madrid, casa de campo, finca en extremadura, casa en extremadura, vivienda aislada, cuanto cuesta una casa de campo, cuanto cuesta construir en extremadura.
delavegacanolasso© 2020.
Todos los derechos reservados · Diseñada y desarrollada por Pilar Cano-Lasso e Ignacio de la vega©·
Todos los derechos reservados · Diseñada y desarrollada por Pilar Cano-Lasso e Ignacio de la vega©·